YQ98001過濾活塞式可調減壓閥
YQ98001過濾活塞式可調減壓閥一種利用介質自身能量來調節與控制管路壓力的智能型閥門。當閥門從進口端給水時,水流過針閥進入主閥控制室,出口壓力通過導管作用到導閥上。當出口壓力高于導閥彈簧設定值時,導閥關閉。
產品概述
YQ98001過濾活塞式可調減壓閥一種利用介質自身能量來調節與控制管路壓力的智能型閥門。當閥門從進口端給水時,水流過針閥進入主閥控制室,出口壓力通過導管作用到導閥上。當出口壓力高于導閥彈簧設定值時,導閥關閉?刂剖彝V古潘,此時主閥控制室內壓力升高并關閉主閥,出口壓力不再升高。當閥門出口壓力降到導閥彈簧設定壓力時,導閥開啟,控制室向下游排水。由于導閥系統排水量大于針閥的 進水量,主閥控制室壓力下降。進口壓力使主閥開啟。在穩定狀態下,控制室進水、排水相同,主閥開度不變,出口壓力穩定。出口壓力不因進口壓力變化而改變, 亦不因主閥出口流量的變化而改變,安全可靠地將出口壓力維持在設定值上。該閥減壓精確,性能穩定、安全可靠、安裝調節方便,使用壽命長。可用于生活給水、 消防系統及工業給水系統。
使用原理
YQ98001過濾活塞式可調減壓閥從性能上講是一種流體控制設備,主要控制其開、閉及其開度從而達到通、斷及控制其流量、壓力的作用。過濾活塞式可調式減壓閥在此基礎上,利用液壓傳動原理來控制閥的啟、閉及開度。而達到閥門性能上的要求,并利用管道中的流體作為液壓傳動介質,而不需要獨立的液壓泵站,既節約設備的投資,又節約能源,也能達到自動控制的目的。
主要技術參數
公稱壓力(Mpa) | 殼體試驗壓力(MPa) | 密封試驗壓力(MPa) | 調壓范圍(MPa) | 緩閉時間(S) | 最低動作壓力(MPa) | 適用介質 | 介質溫度(℃) |
1.0 | 1.5 | 1.1 | 0.09-0.8 | 3-60 | ≥0.07 | 水 | 0-80 |
1.6 | 2.4 | 1.76 | 0.15-1.4 | ||||
2.5 | 3.75 | 2.75 | 0.2-2.0 |
零部件材料
零件名稱 | 材質 |
閥體、閥蓋 | 鑄鐵、鑄鋼 |
閥座 | 錫青銅、不銹鋼 |
閥瓣 | 碳鋼、不銹鋼+NBR |
閥桿 | 鋁青鋼、鉻不銹鋼 |
活塞 | 鉻不銹鋼+NBR |
過濾網 | 不銹鋼 |
彈簧 | 不銹鋼 |
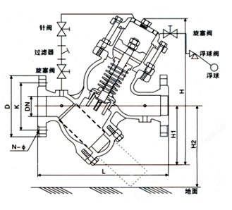
尺寸圖


相關新聞
|
||||||||||||||||||||||||
![]() |
||||||||||||||||||||||||
| ||||||||||||||||||||||||









